
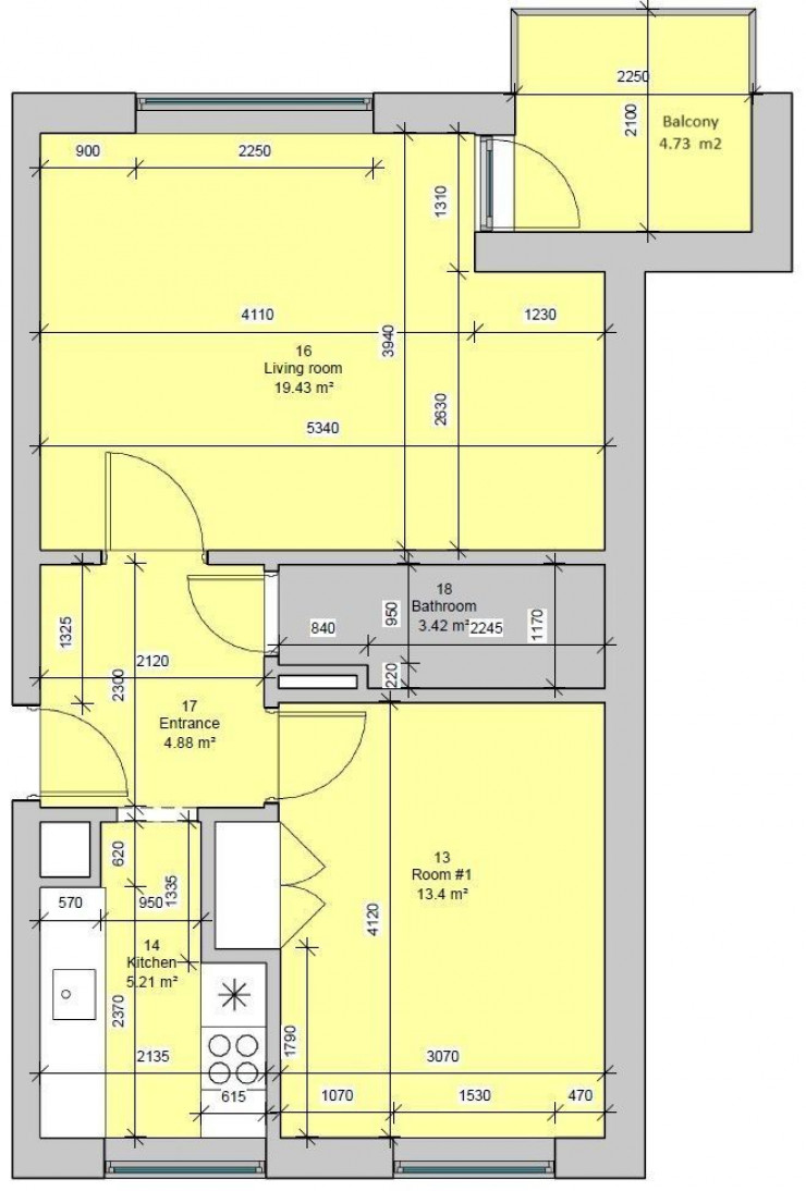
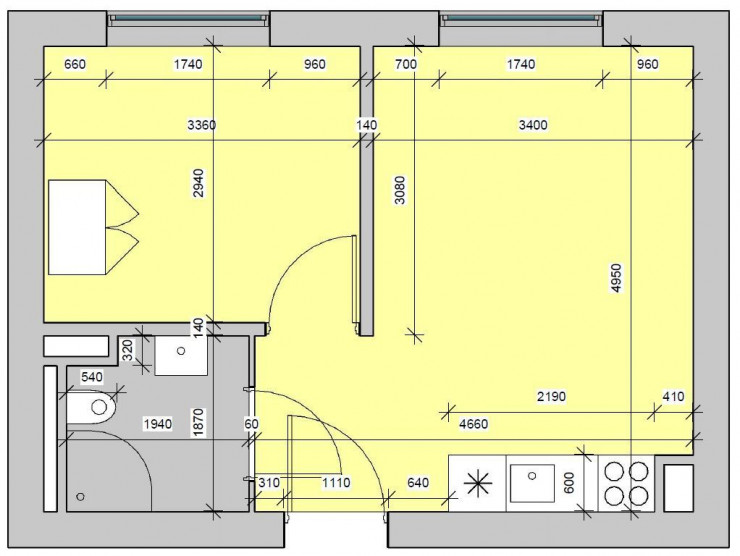
49 m2
Blok D Type A
Husleje | Kr. 3.100,- |
Aconto varme/el/vand | Kr. 1.040,- |
Depositum | Kr. 14.276,- |
Vores 2-værelses lejligheder er ideelle til dig, der ønsker lidt mere plads – enten til dig selv eller til at dele med en roommate. Hver lejlighed er udstyret med komfur og kølefryseskab, så du nemt kan komme i gang med hverdagen.
Der er elevator tilknyttet i alle blokke (med undtagelse af blok F og G), så boligerne er tilgængelige for alle.
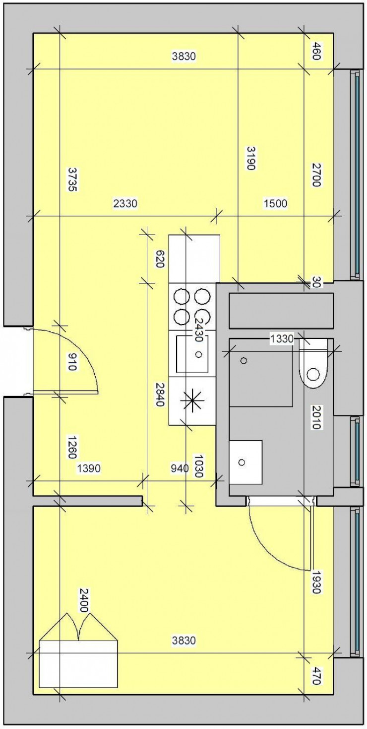
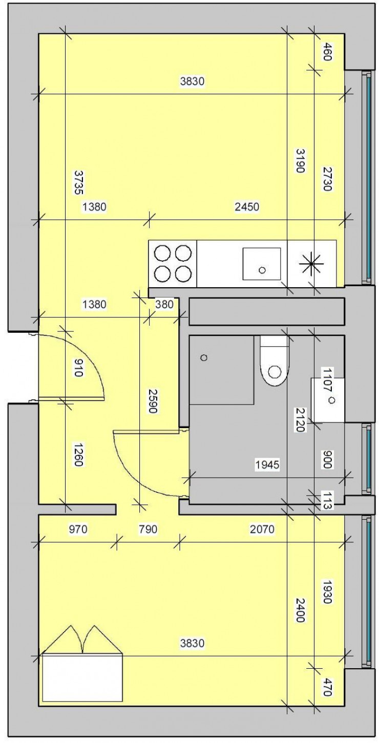
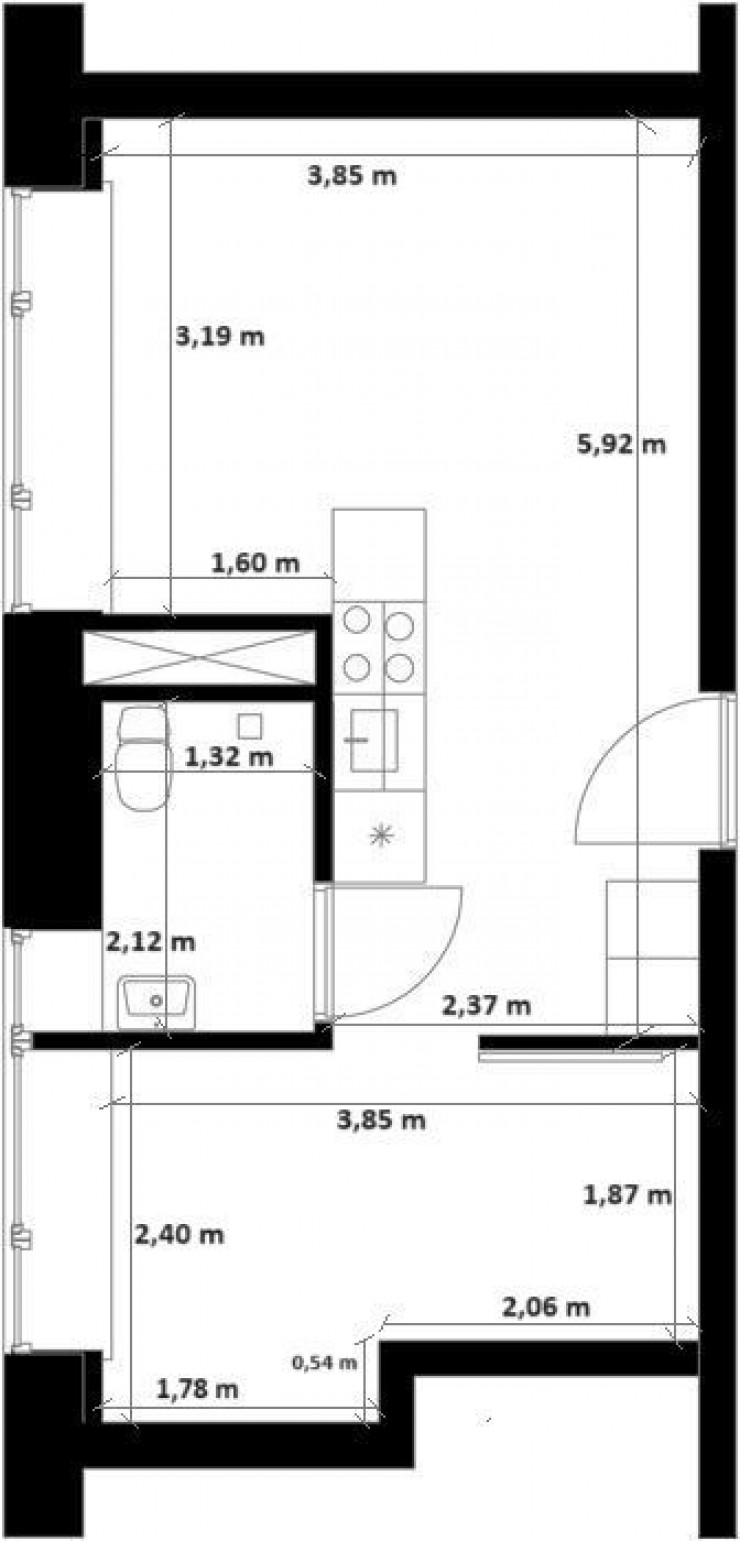
Bemærk, at kvadratmeterstørrelsen ikke kan beregnes ud fra tegningerne, da vi skal oplyse det areal, der er angivet ved BBR, hvilket også omfatter en del af de fælles gange.
Få svar på de mest almindelige spørgsmål i vores FAQ. Har du brug for yderligere hjælp, er du altid velkommen til at kontakte os.